
وحدات الوصال شبه المنفصلة
وحدات سكنية للعائلة العربية المعاصرة
مخطط المسرة، شارع الأمير سلطان، جدة
يسعى تصميم هذه الوحدات السكنية المعاصرة إلى إعادة تعريف و إعادة تصميم المنزل الجداوي التقليدي. و قد وفرت أمثلة العمارة التقليدية بالحجاز و خاصة منطقة وسط البلد بمدينة جــدة الإلهام الأساسي لخطوط التصميم و توزيع الفراغات و التكوين المعماري للكتل للوحدات السكنية. و قد صممت الوحدات السكنية بحيث تستغل واجهاتها الرئيسة الرياح الشمالية الغربية القادمة من البحر بشرفات واسعة و عميقة في نفس الوقت لتفادي أشعة الشمس المباشرة. و مع بساطة المسقط الأفقي إلا أن المصمم عوض ذلك في التعامل مع الواجهات المعمارية، حيث أن كل واجهة من واجهات الوحدة هي منحوتة تجريدية تكعيبية، عناصرها الخطوط الرأسية و الأفقية و تباين المسطحات المصمطة و الشفافة بموادها المختلفة.
بساطة التصميم
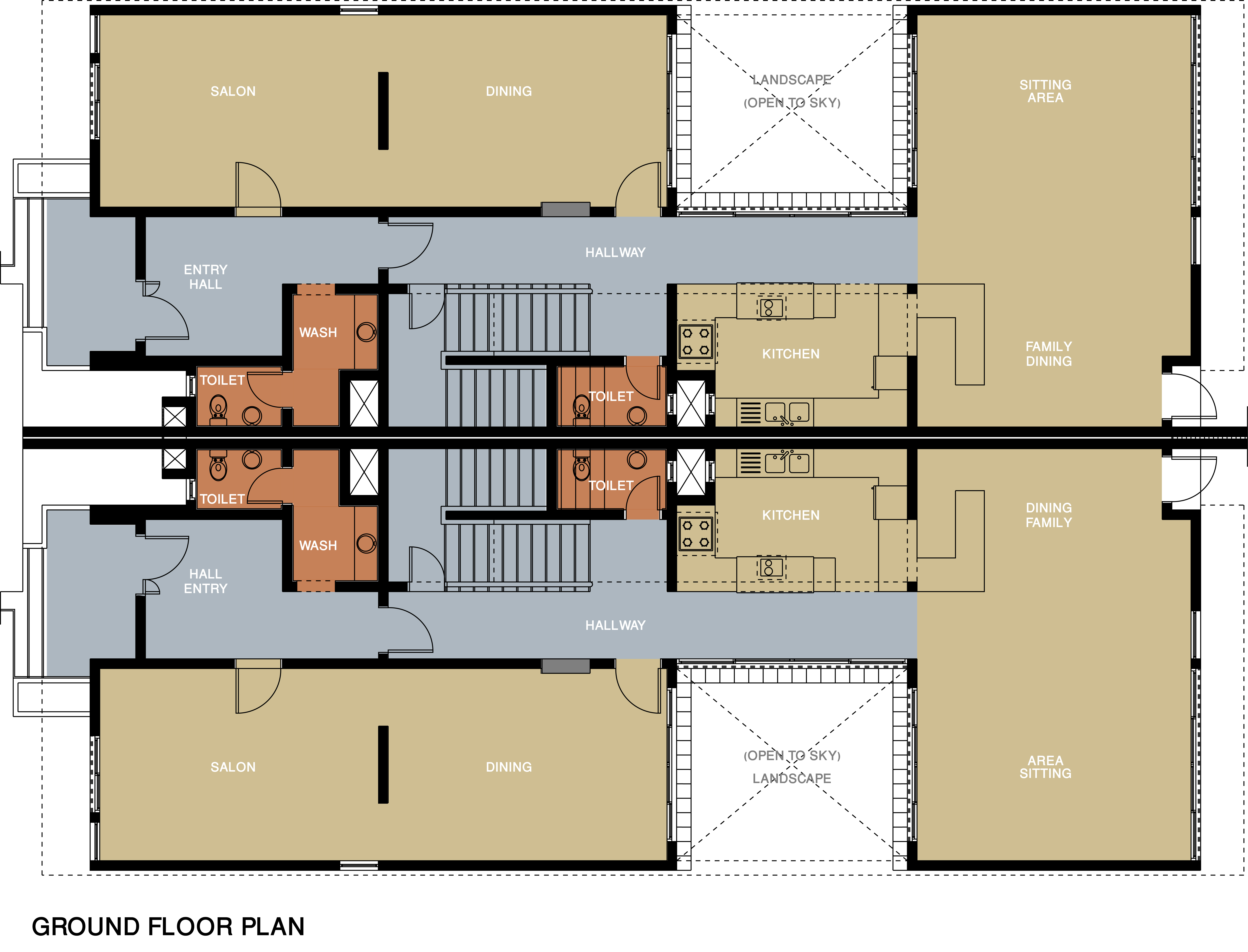
سعى المكتب في التعامل مع تصميم مشروع تطويري من هذا النوع إلى تصميم مسكن إقتصادي يتحلى بأكبر قدر من البساطة الفراغية دون أن يكون ذلك على حساب الخصوصية. مسقط الوحدة الأفقي مستطيل بسيط يجمع الخدمات في جهة واحدة لتوفير تمديدات و قنوات الإحتياجات الإلكتروميكانيكية، و تكون الغرف و الفراغات الأساسية في الجهة الأخري المطلة على الحديقة الداخلية و السور.

الحديقة = الفناء شبه المنفصل
التصميم الفراغي للبيت يوفر للسكان فراغات معيشة مريحة و عملية. ففراغ المعيشة يطل على فناء صغير تم إستلهام فكرته من فناء المنزل العربي القديم، و هو إمتداد لحديقة البيت الخارجية و يشكل مركز البيت، و ذلك لتوفير أكبر قدر من الضوء دون التقصير في الحفاظ على الخصوصية. و في نفس الوقت يتداخل فراغ المعيشة مع المطبخ بحيث يستطيع مستخدم المطبخ التجهيز و الطبخ و التواصل البصري مع الجالسين في غرفة المعيشة في آن واحد.
إعادة تعريف المشربية
و حفاظا على خصوصية السكان تم تصميم ستائر رأسية على الشرفات صممت لتحاكي المشربية التقليدية، و لكن بمفهوم جديد مع إمكانية تحريك الستار حسب الرغبة. فقد قام فريق التصميم بتطوير مشربية معاصرة تعيد تعريف مفهوم المشربية و متوافق مع متطلبات الحياة العصرية للأسرة العربية في جدة. و توفر هذه المشربية الحديثة المرونة في الإستخدام بحيث يمكن تغطية كامل النافذة بالساتر المتحرك أو فتحه كليةً والذي بدوره يضع شكل المشربية النهائي في يد المستخدم عن طريق تقنية تحريك القواطع الساترة. و صممت الستائر بحيث تنسجم مع تصميم الواجهات الخارجية، و التي بدورها صممت لتكون رسم تجريدي للكتل بحيث يتم إستغلال التباين بين الأسطح المصمتة و الأسطح الشفافة و السواتر و التجويفات، و الخطوط الأفقية و الرأسية.
الحجر المنقبي
تم إستخدام الحجر المنقبي التقليدي على أسطح الكتلة الرئيسية في واجهة الوحدة السكنية، و ذلك لإبراز شخصية التصميم الجداوي و ربطها بروح العمارة التقليدية في منطقة البحر الأحمر، و الذي يشكل السياق العمراني التاريخي للمباني في جدة. و هذا الحجر الخفيف المنحوت من الكسارات المرجانية على طول سواحل البحر الأحمر كان يكون اللبنة الأساسية في البناء في مدينة جدة، نظرا لما يتسم به من خاصية مسامية تساعد على إنسياب نسمات الهواء عبر الجدران إلى الفراغات الداخلية و عدم إحتباسه للحرارة مما أسهم كثيرا في التكيف مع الطقس شديد الرطوبة التي تتسم به المنطقة.
ولقد عمد فريق التصميم على تحديد ألوان الواجهات الخارجية إلى لونين مستوحان من العمارة التقليدية لوسط البلد، فبالإضافة إلى الحجر المنقبي، فإن باقي الأسطح الخارجية مدهونة باللون الأبيض لتحاكي لياسة النورا التي كانت تستخدم في السابق. و المواد الخارجية تقتصر على الخرسانة المدهونة و الحجر المنقبي و الزجاج و الخشب و الألمنيوم. و هذا الإقتصاد في المواد الخارجية يزيد من أناقة التصميم و يبعده عن البهرجة الشديدة التي نراها في الكثير من البيوت و التي للأسف أصبحت هي المعيار.
المساقط و الواجهات



