مبنى مقر صحيفة المدينة |
|
Al-Madinah Newspaper HQ building CP/05 |
|
| CORPORATE BUILDINGS/05 | |
| 1977 | Studio Sessanta5-Franco Audrito with SAK |
| 15.5 m | 3 Floors |
| 4,875 m2 | 10,392 m2 (Site) approx. |

As the name suggests, the “Studio Sessanta5” (pronounced Sessanta Chinqwe) was formed in Turin, Italy, in 1965. It was led by the Italian Architect Franco Audrito, along with a group of colleagues who had studied together at the University of Turin.
(For more on the Studio formation, kindly refer to our earlier post, Jeddah Architectural Guide | CP/07)
Within a few years after establishing their practice, the Oil boom in Saudi Arabia, starting around the early 1970s, provided a continuous flow of building projects. This, in turn, naturally attracted many international firms from Europe and North America to design many of the architectural landmarks that still exist in the city today, and to provide their professional expertise and services.
A chance encounter with university friends led to Franco Audrito receiving an invitation to visit Jeddah. He was subsequently introduced to the Saudi Architect Soliman El-Khereiji, and shortly thereafter, decided to establish a joint office in Jeddah in 1975.

As the new context of Saudi Arabia dictated, the studio would shift its approach to architectural design, and accommodate the need to provide designs “capable of expressing the values, traditions, and also contradictions inherent” in such a new environment that they were coming to terms with.
It is with this challenge in particular that, according to Audrito’s own writing, he was heavily influenced at the time by the works of the American architect Louis Kahn. An architecture that leaned heavily on “a design model constructed out of simple geometric forms, in whose composition he set out to express the historical reason of collective archetypes rather than the type of industrial reason associated with the Bauhaus theories.”

Soliman El-Khereiji and Franco Audrito
The first period of “Studio Sessanta5” work in Saudi Arabia stretched from 1976 to 1985. During this period, the studio designed a vast array of building typologies, from private villas to office buildings to the occasional institutional buildings, including some major housing projects in the industrial cities of Jubail and Yanbu.
The studio approached their work with a flexible and determined mindset, recognizing the importance of adapting to the local context. This sensitivity to the task at hand led to a thoughtful integration of their modern architectural style with local traditions. As a result, their designs incorporated symmetrical, rectangular forms to convey modernity, while also drawing inspiration from local historical references to create, what they perceived to be, a unique juxtaposition of contemporary architecture with “assumed” traditional values.
This can be gleaned not only from the text accompanying their first joint monograph publication, showcasing their collection of projects, published in 1996, but more poignantly, from the title they chose for this book: “Modern Architecture and Local Environment”.

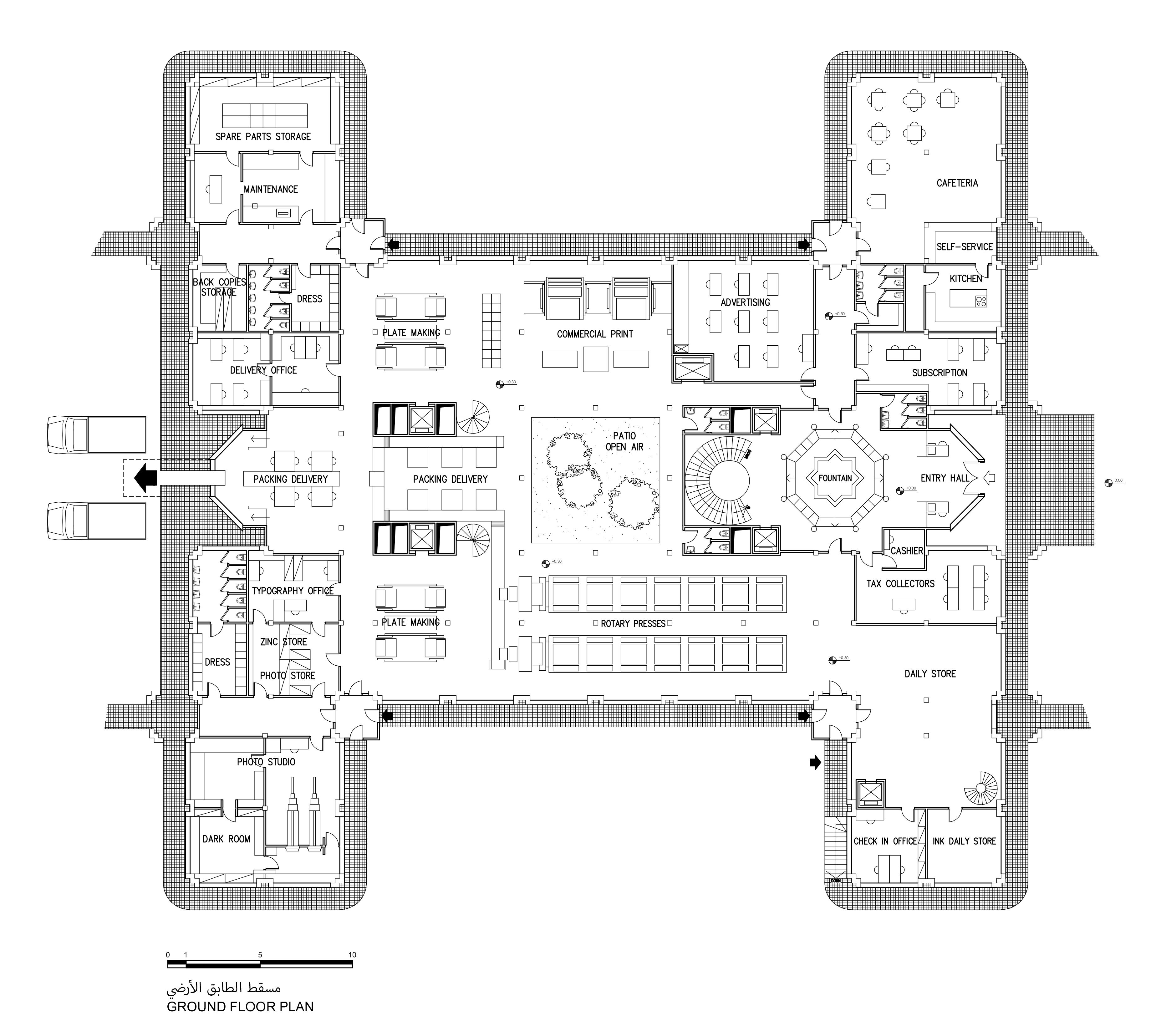
Al-Madinah Newspaper HQ Building, Mushrefah, Jeddah
This approach can clearly be seen in the design of the headquarters building for the Al-Madinah Newspaper in Mushrefah, East Jeddah, on what is known as “Journalism Street”.
The Al-Madinah Newspaper HQ Building was completed in 1977, and was a response to a request from the client to help them design a new building to accommodate all the needs of the printing and publishing of one of Saudi Arabia’s oldest newspaper establishments.
Apart from offices for editorial and management staff, the main function of the new building was to house the rotary printing presses over several floors on a plot of land approximately 10,000 square meters. The new building would replace an old, dilapidated shed with shoddy office space for staff. As it transpires, when the building was inaugurated in 1977, the newspaper’s circulation (like the country’s economy) had boomed to such an extent that the new offices were already too small to contain all the publishing facilities, and an initial extension had to be added on.
The main central high-ceiling rectilinear volume forms the base of the building, with its characteristic rectangular glazing containing the publishing and printing facilities behind it. While two perpendicular slightly lower volumes distinguished by their arcade-like arches contain all the business and public relations activities on the ground and first floors, these are flanked by two main towers, anchoring the building’s juxtaposition of geometric forms. The eastern tower provides the entrance portal overlooking the main “Journalism Street”, with the management offices on the upper level. Another identical tower on the opposite side of the building houses the mosque. Both towers are topped by domes, signalling a strong connection with the newspaper’s namesake, while also introducing what was then a growing tendency to incorporate elements from Islamic architecture into contemporary buildings.
The entire building is clad with Travertino marble, which was the material of choice due to its aesthetic characteristics, blending in with the surrounding environment and climate, but also a reflection of the opulent period during the oil boom era of Saudi Arabia.
The newspaper’s logo features the dome of the Prophet’s Mosque in Madinah, and hence, according to the architects, they decided to base “the project’s underlying symbolic elements on the architectural style of this type of holy building”.


Elevation by Studio 65/SAK.

Audrito, Franco. (1995). The Studio 65: Architecture and Design. Arcaedizioni.
El-Khereiji, Soliman A. & Audrito, Franco. (1996). Modern Architecture and Local Environment. Arcaedizioni.